YOUR HOME FREE
Due to the health concerns created by Coronavirus we are offering personal 1-1 online video walkthough tours where possible.




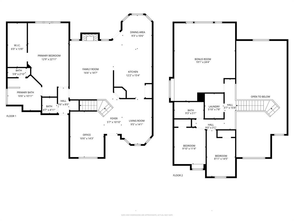
Huge gameroom can easily be divided to add a 4th bedroom while still leaving plenty of space for games and movies. See drawing in photos. Seller has an estimate for less than $10k to add it. The main-level primary suite offers convenience and privacy. The chef’s kitchen boasts gas cooking, double oven and a spacious island for quick meals or entertaining. Step outside to a sparkling salt water pool backing to a serene greenbelt. Just imagine the fun, BBQs and get togethers for next summer. Recent updates include pool coping and tile 2025, pool plaster 2021, HVAC (2022 & 2023) and roof (2021). PAID OFF solar panels convey helping offset the cost of running the pool. With easy highway access and just 18 minutes to DFW Airport, this home delivers the perfect mix of convenience and tranquility.
| 4 hours ago | Listing updated with changes from the MLS® | |
| 3 weeks ago | Price changed to $450,000 | |
| 5 months ago | Listing first seen on site |
Did you know? You can invite friends and family to your search. They can join your search, rate and discuss listings with you.